กก

Mini Screening Plant

have the advantage of being compact and can be shifted to site to enable on site grading of aggregates and can be run easily from any normal electric power outlet and are very simple to handle.

กก

Stationary Screening Plant

can of high capacity and pretty sturdy. It is able to screen large quantities of aggregates and is generally  driven by electric motor.

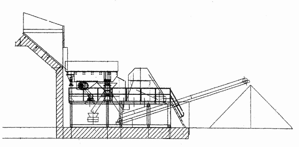
Stationary Jaw crusher with Screening Plant

can be supplied to suit production requirement and suitable for quarries which sell aggregates to large number of customers and need very heavy duty and sturdy plant.